項目地點:中國,北京,北京市
是否站內:否
項目類型:自建房設計
專業類型:建筑設計
建筑面積:300㎡以內
設計工期:10天
項目說明:
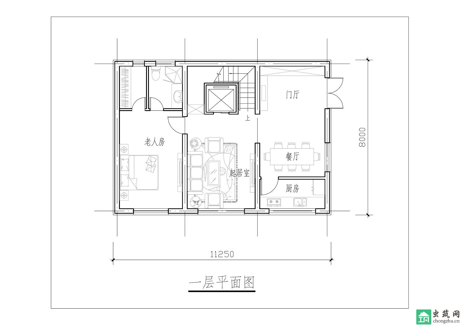
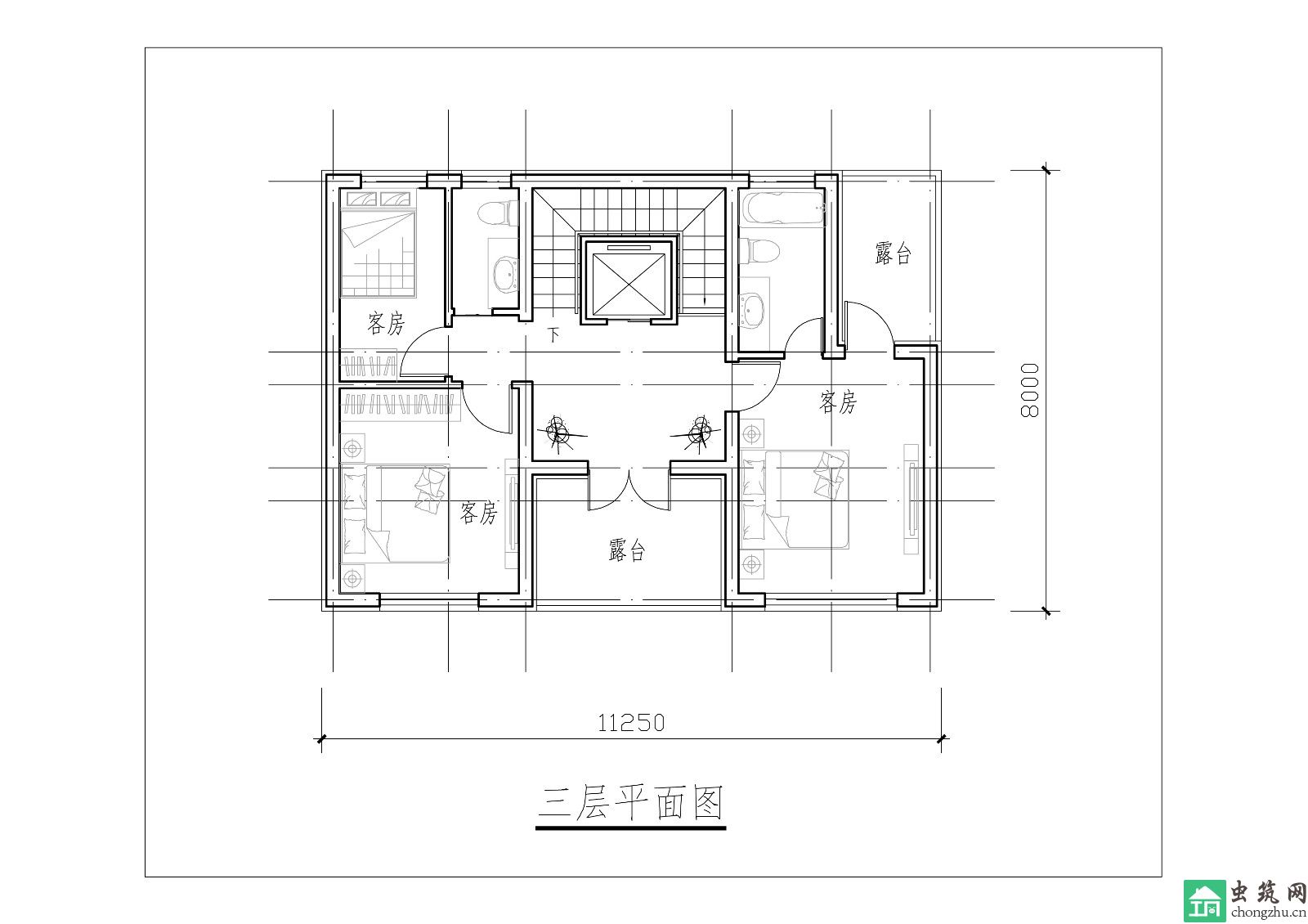
1.家里經常有人串門,因此設置較大且靈活的公共交往空間。 2.交通核部分位于整棟建筑中部,到達各個空間交通流線最短,且各功能空間位于東西兩側,互不干擾。 3.入戶位于東側,兼顧紫氣東來的風水考慮,并且建筑距離道路有一定的距離,可以考慮停車及室外休閑場所。進門針對影壁,可以擺放壁畫或者擺件。老人房位于西側,動靜分離,較安靜舒適。 4.二層中部客廳,為家長與孩子創造空間,東側設置主臥套,獨立衛生間與衣帽間。 5.三樓為客房,增設室外休閑露臺。

