項目地點:中國,廣東省,韶關市
是否站內:否
項目類型:自建房設計
專業類型:多專業
建筑面積:1000㎡以內
設計工期:25天
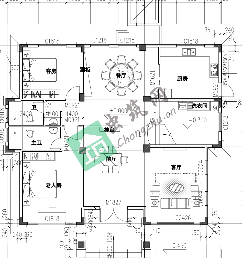
項目說明:
朱總為人爽快,簡單聊幾句后就確定我們設計,平面設計過程中也調整修改了好幾次,效果圖階段也很滿意,最后繪制完各專業全套施工圖。安徽紫川建筑設計團隊成員均來自甲級設計院,主創設計師畢業于安徽理工大學建筑系和安徽建筑大學土木工程系,從業多年,可提供甲級資質出圖蓋章。設計范圍:規劃設計、建筑設計、結構設計、水電設計、室內、景觀、效果圖設計等。設計宗旨:誠信做人,踏實做事!



