項目地點:中國,浙江省,舟山市
是否站內:否
項目類型:室內設計
專業類型:室內設計
建筑面積:5000㎡以內
設計工期:20天
項目說明:
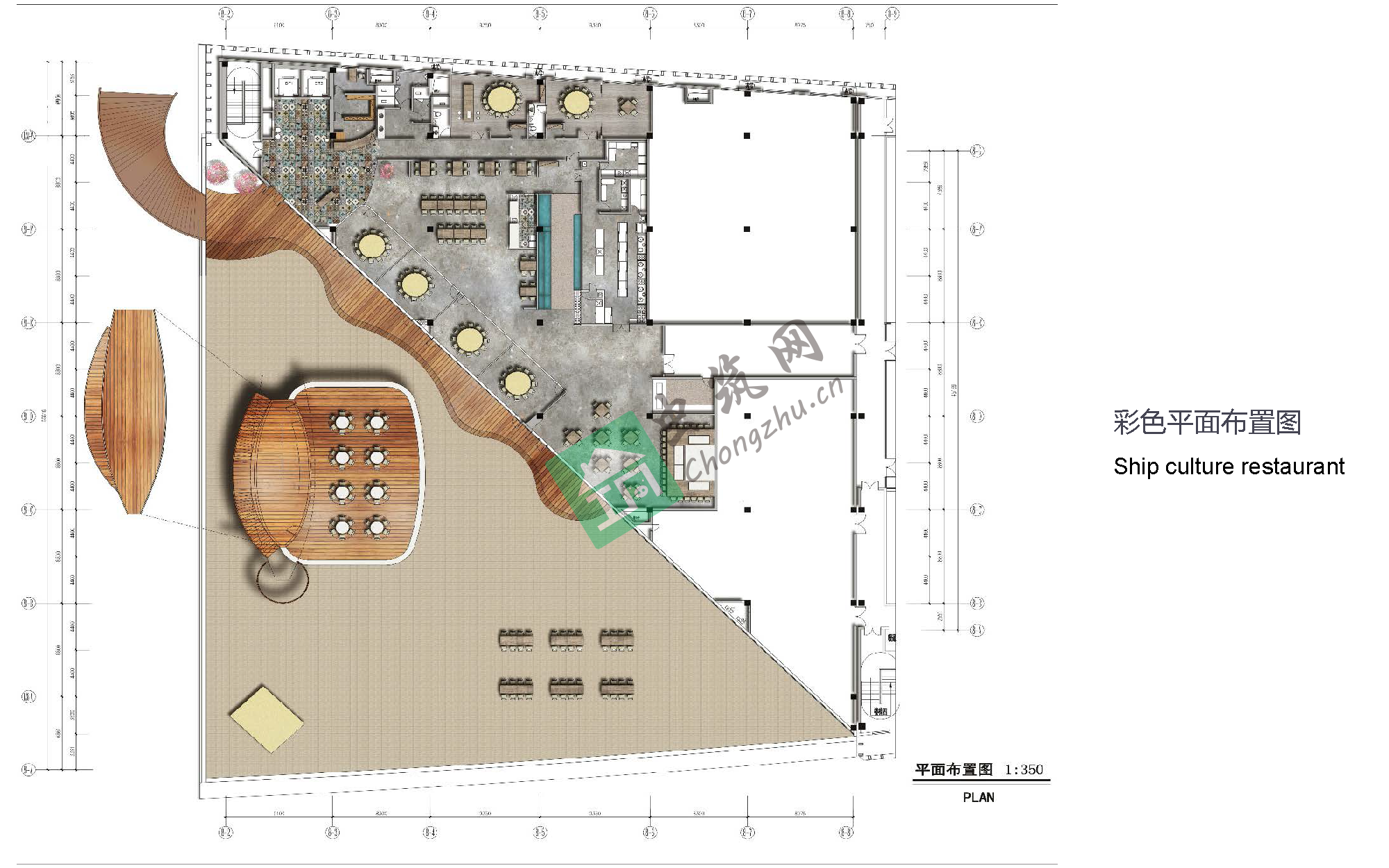
總設計面積為1160㎡,項目位置在沈家橋,運用海洋元素與船文化相結合。
海螺旋轉鋼結構入口,魚造型大門,船造型文化吧臺,以及老船木飾面的工業風海鮮加工區,船頭造型來料加工區,貝殼、海螺、海星元素設計制作成生鮮海產品自選展臺,自選精美超市,定制異形室內就餐區,
天花采用魚群在游動的造型來布置,在整個餐廳中游動,結合燈光設計,讓魚的顏色豐富起來;地面采用海底顏色水泥磨平讓人有種置身于海底底部奇妙感受。
室內裝飾面以船槳、船錨、救生圈等裝飾掛件,及舟山寫意裝飾畫,投影拼接屏手法,制作出海洋、航海等生動畫面。
此外還包含4個主題包廂、就戶外就餐區等。
	














