項目地點:中國,云南省,曲靖市
是否站內:否
項目類型:自建房設計
專業類型:多專業
建筑面積:500㎡以內
設計工期:20天
項目說明:
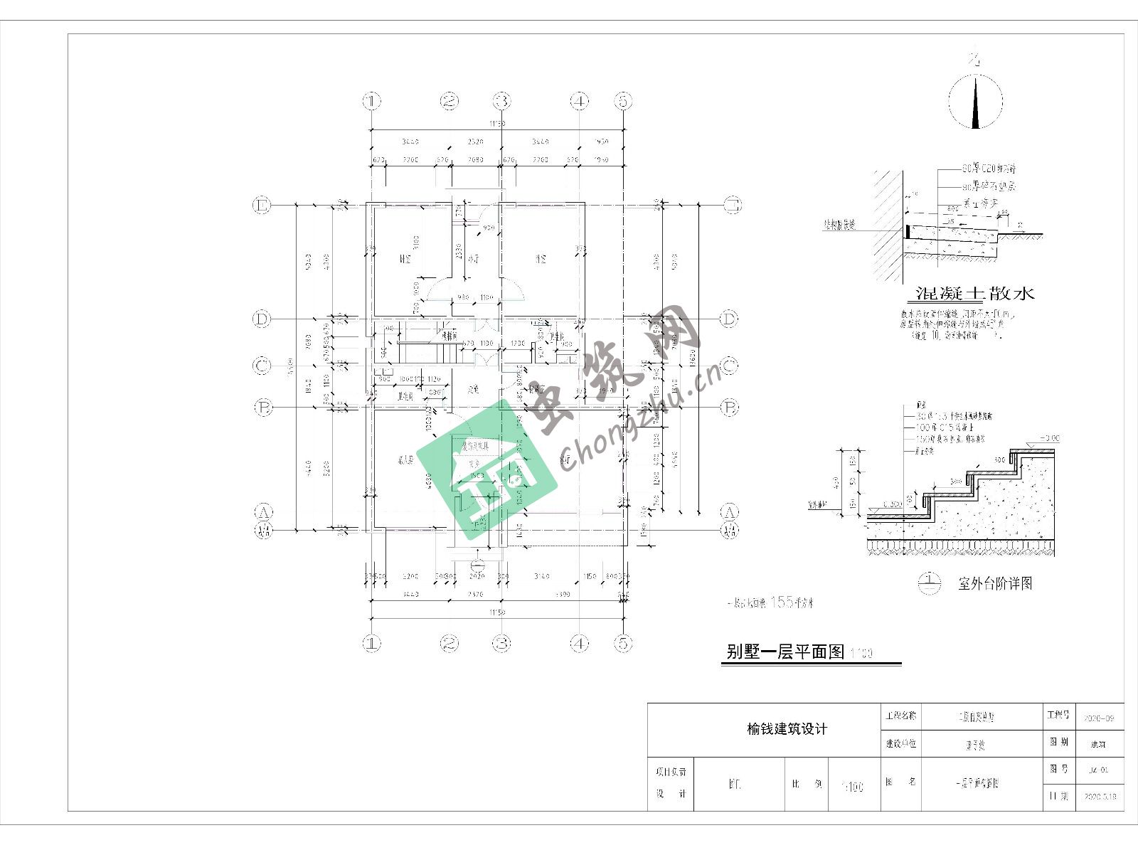
本項目位于云南省曲靖市占地面積155.5平方米總建筑面積311.80平方米,建設地點環境幽美。建筑主體兩層主體高度9.86米室內外高差為0.45米工程結構形式為磚混結構,建筑立面規整。建筑在樓梯間頂面考慮3000瓦光伏太陽能安裝空間,不影響其他空間的利用干擾。外立面為白色外墻涂料為主鐵銹紅塊材及黑色胡桃木鋁塑板裝飾配色。玻璃欄板木色扶手以及盡量寬大的玻璃窗勾勒出盡可能通透的內外視覺聯系且注重采光和通風,建筑總體效果為現代風格。












