項目地點:中國,陜西省,西安市
是否站內:否
項目類型:室內設計
專業(yè)類型:室內設計
建筑面積:1000㎡以內
設計工期:15天
項目說明:
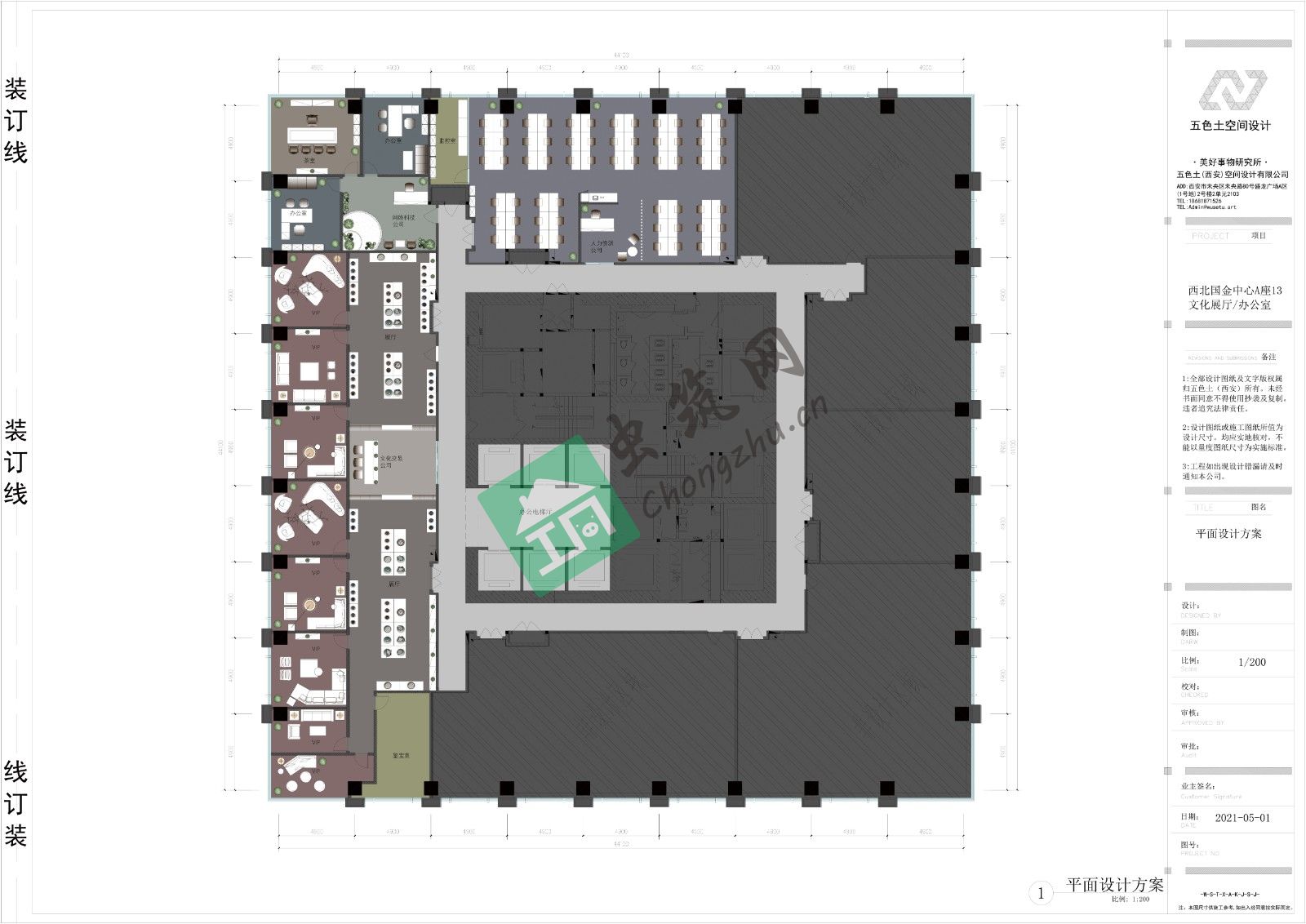
樓層共計38層
單層共10間辦公室
單間最小面積138.14㎡
單間最大面積304.25㎡
公區(qū)走廊寬度1.9m
樓層公用衛(wèi)生間/茶水間
本項目位于13層
建筑層高4.2m
完成面層高3m
項目樓層占比5間
建筑面積共計976.51㎡
			
		
人力資源公司192㎡
網(wǎng)絡科技公司101㎡
文化品交易公司368㎡
?
實際可用面積666㎡
人力資源公司193㎡
機房/監(jiān)控室13.6㎡
前廳接待14.6㎡
公共辦公區(qū)164.8㎡
?
網(wǎng)絡科技公司102㎡
前廳接待14.6㎡
2間辦公室每個21㎡
茶室28㎡
?
文化品交易公司370㎡
6間大VIP接待每個23㎡
中VIP接待16.4㎡
小VIP接待13.6㎡
鑒寶室24㎡
前廳接待23.7㎡
展廳154.3㎡
		
	
		
	













